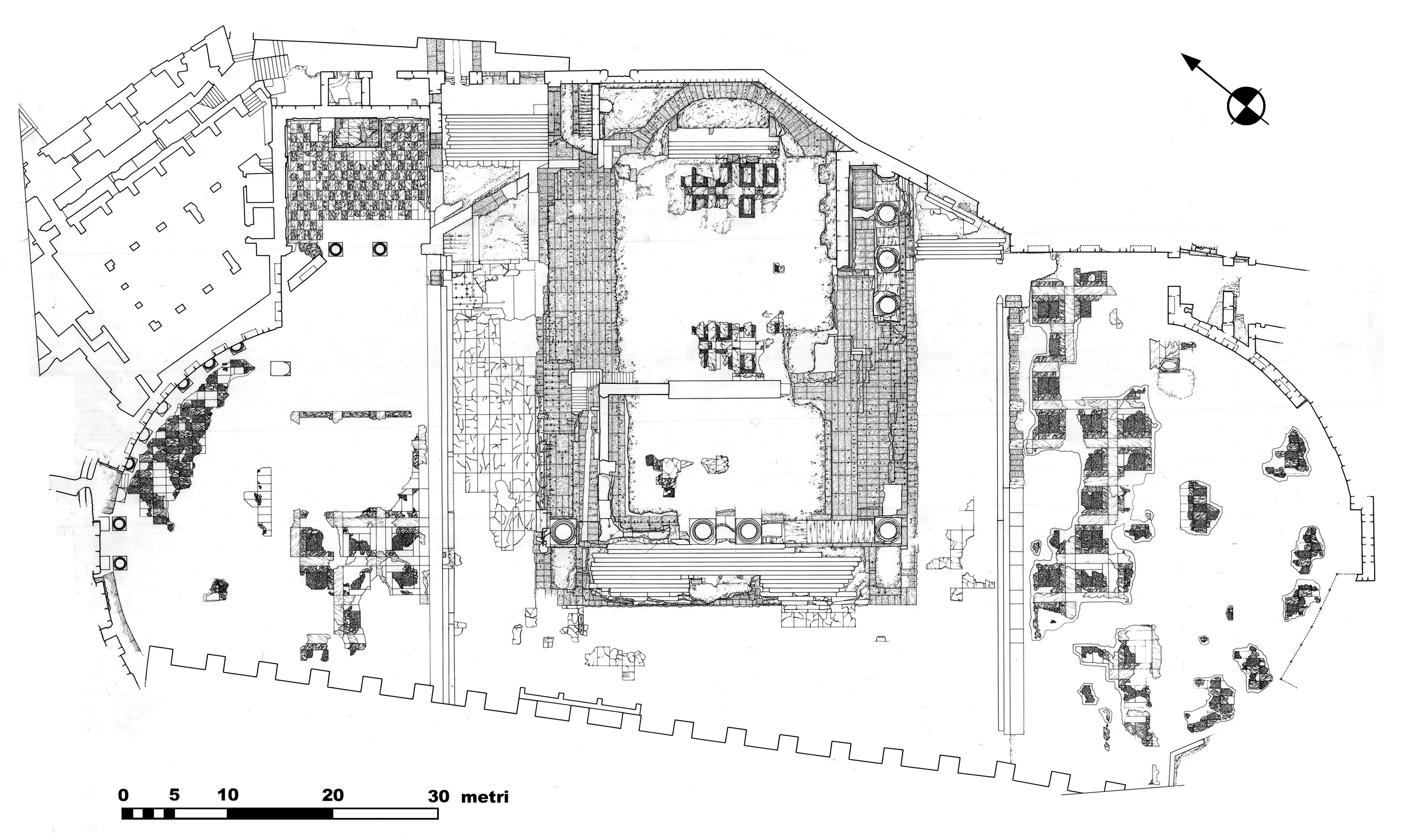
La pianta del Foro

In realtà, il nuovo complesso aveva dimensioni imponenti, con un perimetro complessivo di circa 120 x 120 metri e si articolava intorno a una piazza rettangolare di circa 70 x 50 metri. Nel centro del lato corto orientale era inserito il Tempio di Marte Ultore mentre i lati lunghi erano occupati da portici colonnati. I portici si aprivano, a loro volta, ciascuno su due emicicli del diametro di 40 metri destinati ad accogliere tribunali i due a est (i cui resti sono ancora visibili) e, forse, archivi i due a ovest (non più esistenti).
